Magna Concursos
1579363 Ano: 2010
Disciplina: Engenharia Civil
Banca: IFPI
Orgão: IFPI
Provas:
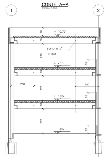
Na avaliação de uma planta de projeto estrutural de uma construção industrial, considere a figura a abaixo e julgue as afirmações a seguir:
Enunciado 1579363-1
I. A concepção estrutural deste projeto pode ser considerada como a de uma estrutura pré-moldada de concreto.
II. As lajes são pré-moldadas e maciças e estão apoiadas diretamente sobre as vigas.
III. As vigas podem ser de concreto armado ou de concreto protendido, fato não identificado nesse esquema estrutural.
IV. Os pilares apresentam um dente conhecido pela literatura como consolo curto e sevem para apoiar as vigas.
V. O modelo estrutural mais apropriado para se determinar os esforços solicitantes nas vigas é de viga biengastada.
O número de afirmações corretas é:
Questão Anulada

Provas

Questão presente nas seguintes provas

Engenheiro Civil

100 Questões