Magna Concursos
2809006 Ano: 2023
Disciplina: Arquitetura
Banca: UFLA
Orgão: UFLA
Provas:
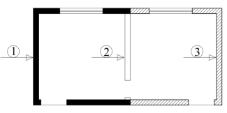
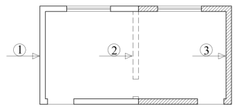
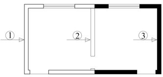
A NBR 6492 - Documentação Técnica Para Projetos Arquitetônicos e Urbanísticos - Requisitos (ABNT, 2021) estabelece os requisitos para a documentação técnica de projetos arquitetônicos e urbanísticos, em função das etapas de projeto. De acordo com a norma, assinale a alternativa que apresenta a correta representação de reformas:
1 – alvenaria existente 2 – alvenaria a demolir 3 – alvenaria a construir
 

Provas

Questão presente nas seguintes provas

Arquiteto

70 Questões