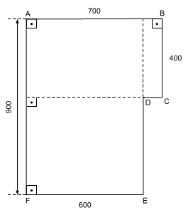
Um terreno está representado na figura pelo polígono ABCDEF e tem suas medidas em metros.

O perímetro desse terreno, em metros, é
Um terreno está representado na figura pelo polígono ABCDEF e tem suas medidas em metros.

O perímetro desse terreno, em metros, é