Magna Concursos

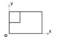
No ambiente CAD, a imagem abaixo mostra a vista de um objeto referenciado a um sistema de eixos.

enunciado 1599134-1

A visualização desse objeto por um observador identificado pelas coordenadas (1,1,1) neste mesmo sistema de eixos é representada por:

 

Provas

Questão presente nas seguintes provas