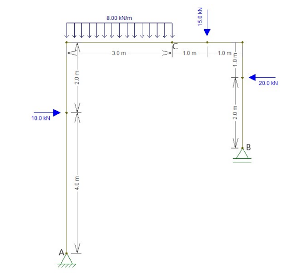
Para responder às questões 44 e 45, considere a viga apresentada na Figura 2 a seguir:

Figura 2 – Pórtico submetido a carregamentos
Ainda sobre o pórtico apresentado na Figura 2, relativo aos esforços internos, assinale a alternativa que apresenta o valor do momento fletor, em módulo, na posição C, localizado a 3 m da extremidade esquerda da viga central da estrutura.