Magna Concursos
Questões
Planos
Entrar
Entrar
Criar Conta
Respondida
2512195
Ano:
2016
Disciplina:
Arquitetura
Banca:
UNIVASF
Orgão:
UNIVASF
Provas:
Arquiteto e Urbanista
Provas
×
Tecnologia das Construções
Sistemas e Elementos Construtivos
Sistemas Estruturais
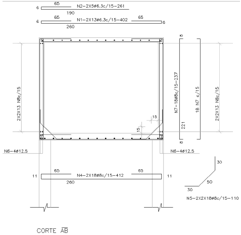
Considerando as seguintes informações do projeto estrutural de um reservatório, que tem as medidas em centímetros e os diâmetros das armaduras em milímetros, é CORRETO afirmar que:
A
O projeto especifica doze vigas V1 e doze vigas V2 com 225 cm de tamanho cada e iguais nos quatro lados.
B
Deverão ser executadas quatro sapatas (S1 a S4) com 1 m
3
de volume cada.
C
A laje da tampa possui um vazio próximo ao pilar P4 e seis N3 de 10 mm cada.
D
O projeto determina para a laje da tampa quinze N2 com 261 cm de comprimento cada.
E
A laje do fundo possui duas armaduras N4 com comprimento de 240 cm cada.
Resolver
Comentários
0
×
Cadernos
×
Flashcards
×
Estatísticas
×
Reportar um erro
×
Provas
Questão presente nas seguintes provas
Arquiteto e Urbanista
50 Questões
Resolver Prova
Publicar
Responder
Qual o problema da questão?
Selecione uma opção
Questão Desatualizada
Questão Repetida
Gabarito Errado
Outros Motivos
Mensagem
Enviar
Acessar
Criar Conta
Acesse sua Conta
Google
Facebook
Esqueci minha senha
Acessar
Ainda não tem conta?
Crie uma
!
Crie uma Conta
Criar Conta
Olá, para continuar, precisamos criar uma conta!
É
rápido
e
grátis
.
Google
Facebook
Concordo com os
Termos de Uso
Criar
Já tem uma conta?
Acesse aqui