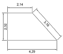
A figura cotada de acordo com a NBR 10.126 (Cotagem em Desenho Técnico) é:
Olá, para continuar, precisamos criar uma conta! É rápido e grátis.