- ProjetosAnálise Projetual
- Tecnologia das ConstruçõesSistemas e Elementos ConstrutivosSistemas EstruturaisMorfologia e Funcionamento das Estruturas
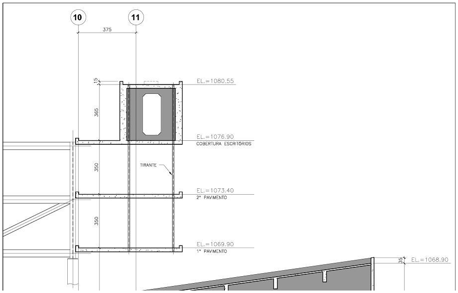
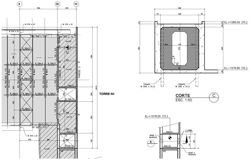
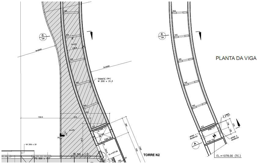
Observe, na obra da nova sede do Sebrae Nacional em Brasília, DF (2008-10), a solução das varandas de circulação penduradas na viga de cobertura.








Analisando as imagens, os desenhos das formas e armações do projeto executivo da estrutura, verifica-se que
I. as grandes vigas da cobertura são do tipo vierendel e bi-apoiadas.
II. as grandes vigas que sustentam as varandas penduradas utilizam o tipo de articulação chamada gerber, ou também dente gerber.
III. os tirantes que sustentam as varandas de circulação possuem massa linear de 31,3 kg/m.
IV. os tirantes que sustentam as varandas de circulação possuem diâmetro de 200 mm.
É correto o que consta em








Analisando as imagens, os desenhos das formas e armações do projeto executivo da estrutura, verifica-se que
I. as grandes vigas da cobertura são do tipo vierendel e bi-apoiadas.
II. as grandes vigas que sustentam as varandas penduradas utilizam o tipo de articulação chamada gerber, ou também dente gerber.
III. os tirantes que sustentam as varandas de circulação possuem massa linear de 31,3 kg/m.
IV. os tirantes que sustentam as varandas de circulação possuem diâmetro de 200 mm.
É correto o que consta em