- Normas e LegislaçõesNBRsNBR 12.721: Avaliação de Custos Unitários de Construção para Incorporação Imobiliária
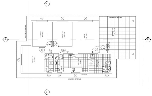
Observe a planta baixa a seguir.

Segundo a NBR 12721, trata-se do projeto-padrão de uma
Provas
Questão presente nas seguintes provas
Analista de Controle Interno - Obras Públicas
79 Questões