- TermodinâmicaLeis e Propriedades da Termodinâmica
- TermodinâmicaTransferência de Calor (Condução, Convecção e Radiação)
Quanto à termodinâmica, julgue o item.
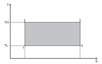
A figura a seguir representa um ciclo de Carnot para máquinas térmicas. Considerando uma máquina ideal que opera entre fonte quente e fonte fria de temperaturas 350 °C e 127 °C, respectivamente, é correto afirmar que o rendimento térmico será de 64,2%.

Provas
Questão presente nas seguintes provas
Analista de Fiscalização - Engenharia Mecânica
120 Questões