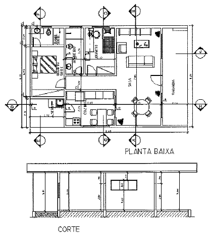
Analise as figuras a seguir.

O corte apresentado acima corresponde a que indicação na planta baixa?
Provas
Questão presente nas seguintes provas
Analise as figuras a seguir.

O corte apresentado acima corresponde a que indicação na planta baixa?