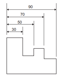
Observe a Figura a seguir com sistema de cotagem por elemento de referência.

Segundo a NBR 10126:1987 – Cotagem em desenho técnico –, nessa Figura, foi adotada a cotagem
Provas
Questão presente nas seguintes provas
Técnico - Inspeção de Equipamentos e Instalações
60 Questões