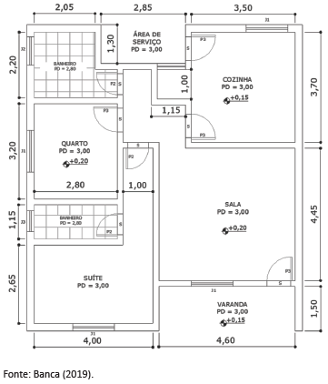
Tem-se a planta de uma edificação conforme ilustração a seguir, com paredes externas iguais a 0,25 m e
paredes internas iguais a 0,20 m, e todas as dimensões cotadas no desenho em metros.

Para a plotagem completa desse desenho na escala 1/50, o tamanho de papel adequado, de forma a ocupar a maior área útil deste papel, é o de formato

Para a plotagem completa desse desenho na escala 1/50, o tamanho de papel adequado, de forma a ocupar a maior área útil deste papel, é o de formato