
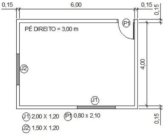
Considerando, ainda, as dimensões indicadas na figura, é necessário conhecer a quantidade de tinta para a pintura das paredes externas, internas e da laje do forro, com duas demãos. Considerando que uma lata de tinta tem 18 litros e rendimento de 200 m2/lata e que um galão de tinta tem 3,6 litros, com rendimento de 40 m2/galão, qual das alternativas apresenta a quantidade, em litros, de tinta necessária para realizar o serviço de pintura?