No projeto de uma escola, um arquiteto precisava dimensionar uma escada que fosse confortável e
estivesse de acordo com a NBR 9050/2021. Não se trata de escada de saída de emergência. Para isso
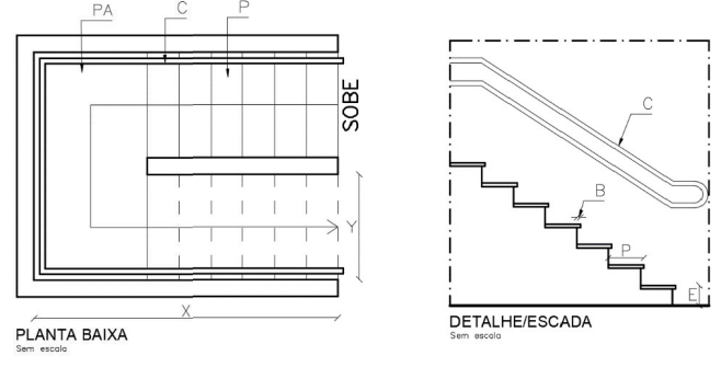
havia uma área destinada à circulação vertical (caixa de escada) representada nos croquis a seguir, na
qual sabe-se que:
X = comprimento (a ser definido)
Y = largura PA = patamar
PE = pé esquerdo (2,80 m)
E = espelho
P = piso
B = bocel
C = corrimão
Com os dados apresentados, qual opção de dimensionamento seria a mais adequada?
X = comprimento (a ser definido)
Y = largura PA = patamar
PE = pé esquerdo (2,80 m)
E = espelho
P = piso
B = bocel
C = corrimão
Com os dados apresentados, qual opção de dimensionamento seria a mais adequada?