O croqui e os dados abaixo referem-se a um projeto de impermeabilização.

Conforme o croqui e os detalhes fornecidos, a área geométrica total a ser impermeabilizada, em m2, sem perdas, é:
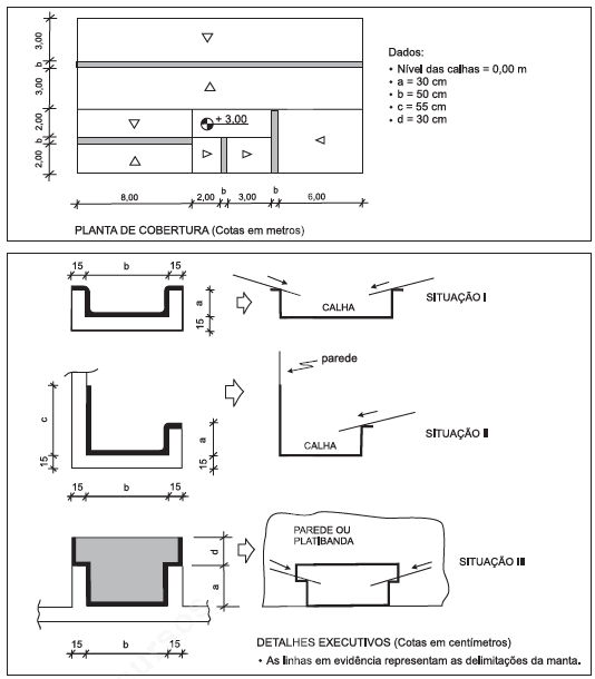
O croqui e os dados abaixo referem-se a um projeto de impermeabilização.

Conforme o croqui e os detalhes fornecidos, a área geométrica total a ser impermeabilizada, em m2, sem perdas, é: