Magna Concursos
2158669 Ano: 2022
Disciplina: Engenharia Civil
Banca: IBADE
Orgão: SEA SC
Provas:

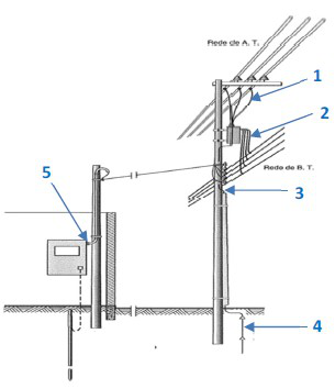
A figura a seguir ilustra a conexão de uma residência a um sistema público de energia elétrica, na qual são indicados, pelos números 1 a 5, alguns componentes desta instalação.

Enunciado 2158669-1

Fonte: adaptado de Hélio Creder, “instalações Elétricas”, 15ª Edição.

Os itens que estão relacionados ao sistema de aterramento são os indicados pelos números:

Questão Anulada

Provas

Questão presente nas seguintes provas

Engenheiro

100 Questões