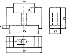
Observe a figura abaixo.

Com relação ao desenho técnico apresentado acima, é correto afirmar que:
Provas
Questão presente nas seguintes provas
Quadro Técnico de Praças da Armada - Mecânica
50 Questões
Observe a figura abaixo.

Com relação ao desenho técnico apresentado acima, é correto afirmar que: