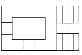
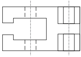
Observe a figura a seguir, que mostra uma peça em perspectiva isométrica.

Indique a alternativa que exibe a vista em planta dessa peça.
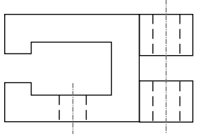
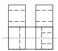
Observe a figura a seguir, que mostra uma peça em perspectiva isométrica.

Indique a alternativa que exibe a vista em planta dessa peça.