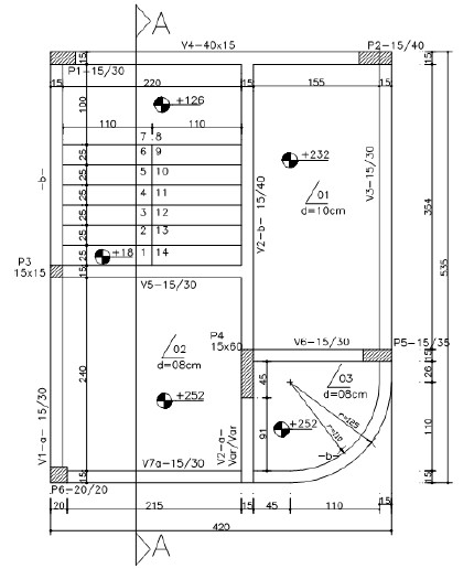
Os desenhos para execução das formas devem conter plantas, cortes e elevações de todas as peças da estrutura, necessários ao perfeito conhecimento de suas formas, dimensões e níveis. Observe.

No que refere à planta apresentada anteriormente, assinale a alternativa correta.