Magna Concursos
2511449 Ano: 2015
Disciplina: Desenho Técnico e Industrial
Banca: FCM
Orgão: IF-SUL Minas
Provas:

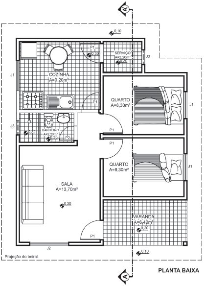
Observe a planta representada abaixo.

Enunciado 3564445-1

Após a análise da figura, conclui-se que

 

Provas

Questão presente nas seguintes provas

Desenhista Técnico

40 Questões