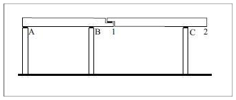
Considere a figura.

Ela representa uma viga com três apoios sobre colunas (A, B, C), um apoio tipo Gerber (1) e um balanço (2). Sobre essa viga, atua uma carga distribuída uniforme. O gráfico genérico de momentos fletores que corresponde a essa estrutura está representado na alternativa

Ela representa uma viga com três apoios sobre colunas (A, B, C), um apoio tipo Gerber (1) e um balanço (2). Sobre essa viga, atua uma carga distribuída uniforme. O gráfico genérico de momentos fletores que corresponde a essa estrutura está representado na alternativa