
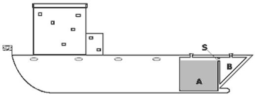
Um navio petroleiro recebe uma carga de petróleo de 2,0 . 106 m3 de uma plataforma de extração de petróleo em águas profundas. Seu tanque A está completamente cheio desse combustível cuja temperatura é 12°C. Existe uma ligação deste tanque ao tanque B, vazio (veja o desenho acima), por meio de uma abertura S. Sabe-se que um barril de petróleo equivale a 160 litros. Ao descarregar sua carga no Rio de Janeiro, a uma temperatura de 34ºC, observou-se que extravasou para o tanque B uma quantidade de 4950 barris de petróleo. Neste caso, o coeficiente de dilatação volumétrico do petróleo é (dado: coeficiente de dilatação linear do aço que são feitos os tanques do navio = 1,2 x 10-5 °C-1)