Magna Concursos
295416 Ano: 2009
Disciplina: Design Gráfico
Banca: CESPE / CEBRASPE
Orgão: CEHAP-PB
Provas:

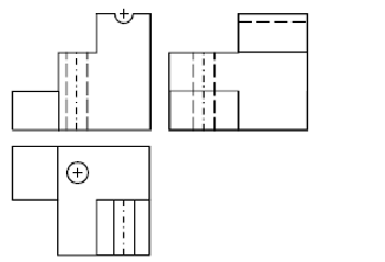
enunciado 1956521-1

Assinale a opção que indica a projeção ortogonal correta, no 1.º diedro, para o modelo desenhado acima em perspectiva.

 

Provas

Questão presente nas seguintes provas

Projetista

50 Questões