Magna Concursos
Questões
Planos
Entrar
Entrar
Criar Conta
Respondida
2072187
Ano:
2014
Disciplina:
Desenho Técnico e Industrial
Banca:
UFAL
Orgão:
UFAL
Provas:
Técnico - Eletroeletrônica e Mecânica
Provas
×
NBRs
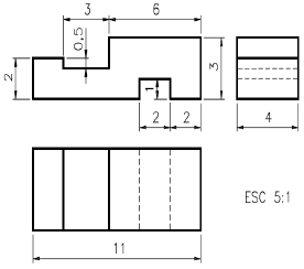
NBR 8196: Emprego de Escalas
O uso de escalas em desenhos é muito utilizado. A figura abaixo apresenta a escala 5:1; isso significa dizer que
A
o desenho real foi ampliado.
B
o desenho real foi reduzido.
C
o desenho real não obedece à NBR 8196.
D
o desenho abaixo corresponde ao real.
E
o desenho real foi reduzido à NBR 8196.
Resolver
Comentários
0
×
Cadernos
×
Flashcards
×
Estatísticas
×
Reportar um erro
×
Provas
Questão presente nas seguintes provas
Técnico - Eletroeletrônica e Mecânica
60 Questões
Resolver Prova
Publicar
Responder
Qual o problema da questão?
Selecione uma opção
Questão Desatualizada
Questão Repetida
Gabarito Errado
Outros Motivos
Mensagem
Enviar
Acessar
Criar Conta
Acesse sua Conta
Google
Facebook
Esqueci minha senha
Acessar
Ainda não tem conta?
Crie uma
!
Crie uma Conta
Criar Conta
Olá, para continuar, precisamos criar uma conta!
É
rápido
e
grátis
.
Google
Facebook
Concordo com os
Termos de Uso
Criar
Já tem uma conta?
Acesse aqui