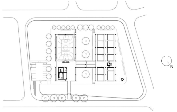
Considere o desenho abaixo, representando uma planta da Escola Estadual Parque São Bento, na Zona Oeste de Campinas.

O partido adotado, de separar o conjunto em dois edifícios, permitiu a
Considere o desenho abaixo, representando uma planta da Escola Estadual Parque São Bento, na Zona Oeste de Campinas.

O partido adotado, de separar o conjunto em dois edifícios, permitiu a