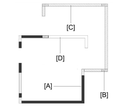
Observe a imagem a seguir:

Fonte: Adaptado de ABNT NBR 6492 (2021, p. 39)
Tratando-se de uma representação gráfica monocromática em planta baixa de elementos de uma reforma de edificação, pode-se afirmar que as representações em [A], [B], [C] e [D] referem-se, respectivamente, a: