Considere a seguinte planta:

De acordo com a NBR 5410, para efeitos do dimensionamento dos circuitos, a carga de iluminação da residência apresentada (considerando varandas e desconsiderando a área de circulação) pode ser estimada em:
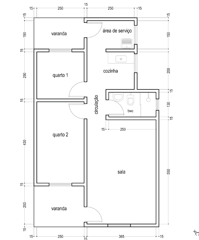
Considere a seguinte planta:

De acordo com a NBR 5410, para efeitos do dimensionamento dos circuitos, a carga de iluminação da residência apresentada (considerando varandas e desconsiderando a área de circulação) pode ser estimada em: