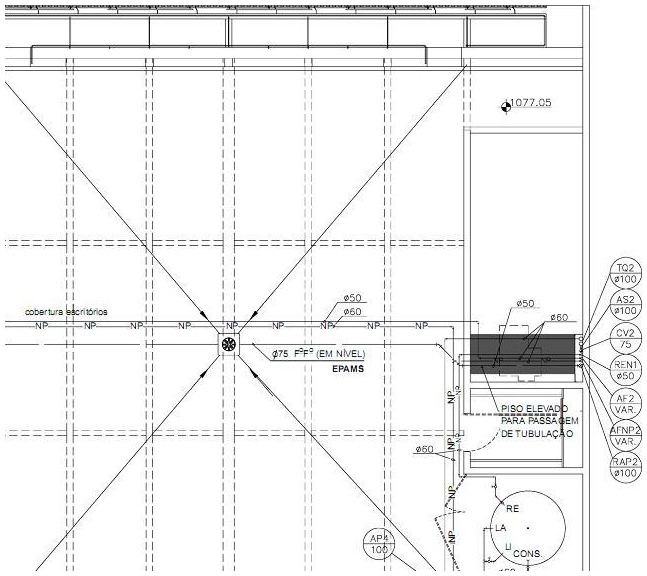
A captação de águas pluviais é um sistema do conjunto das instalações prediais que tem evoluído muito, como pode exemplificar o escoamento por sifonagem do sistema “Epams”, conforme desenhos abaixo.



Considere as seguintes características desse sistema:
I. Instalação sem declividade, totalmente horizontal.
II. Necessidade de se utilizar tubos de diâmetros maiores do que o sistema convencional.
III. Captadores equipados com dispositivo anti-vórtice, impedindo a entrada de ar na tubulação, que funciona à seção plena.
IV. Instalação fácil e rápida, pois não requer esforço mecânico, chanfro ou lubrificante.
É correto o que consta em



Considere as seguintes características desse sistema:
I. Instalação sem declividade, totalmente horizontal.
II. Necessidade de se utilizar tubos de diâmetros maiores do que o sistema convencional.
III. Captadores equipados com dispositivo anti-vórtice, impedindo a entrada de ar na tubulação, que funciona à seção plena.
IV. Instalação fácil e rápida, pois não requer esforço mecânico, chanfro ou lubrificante.
É correto o que consta em