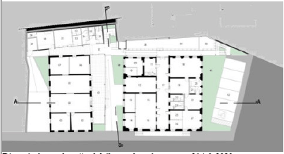
Recentemente, a Sede da Prefeitura da Cidade de Goiás, inserida no seu Centro Histórico, passou por uma requalificação como mostram as imagens a seguir.

Disponível em: <archdaily.com.br>. Acesso em: 31 jul. 2020.

Disponível em: <http://archdaily.com.br>. Acesso em: 31 jul. 2020.

Disponível em: <http://archdaily.com.br>. Acesso em: 31 jul. 2020.

Disponível em: <http://<archdaily.com.br>. Acesso em: 31 jul. 2020.

Disponível em: <http://archdaily.com.br>. Acesso em: 31 jul. 2020.

Disponível em: <http://archdaily.com.br>. Acesso em: 31 jul. 2020.
A análise das imagens revela que
Provas
Questão presente nas seguintes provas