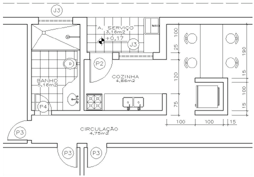
Observe a ilustração abaixo.

AUTORIA DO DESENHO: Professor José Maurício do Couto Bemfica, FEA-FUMEC
Considere as afirmações a seguir, relativas à ilustração.
I. A ilustração representa uma parte, ou detalhe em planta, de uma edificação ou projeto completo.
II. Os símbolos iniciados em “P” ou “J”, dentro dos círculos, serão componentes do quadro de esquadrias do projeto.
III. O símbolo “J3” designa a posição de uma janela cuja altura supera o plano horizontal de corte padrão de um projeto.
IV. Há, na ilustração, a representação de fogão, bancada com cubas, geladeira e mesa com cadeiras, dentre outras.
Pode-se afirmar que