Magna Concursos
Questões
Planos
Entrar
Entrar
Criar Conta
Respondida
804952
Ano:
2009
Disciplina:
Engenharia Civil
Banca:
FCC
Orgão:
TJ-SE
Provas:
Analista Judiciário - Engenharia Civil
Provas
×
Desenho Técnico na Engenharia Civil
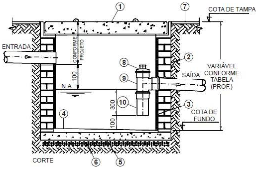
Analise a planta abaixo.
A planta identifica
A
o corte de uma caixa de água enterrada.
B
um ramal de águas pluviais.
C
uma caixa de esgoto sifonada.
D
um reservatório de alívio de pressão.
E
uma caixa de gordura.
Resolver
Comentários
0
×
Cadernos
×
Flashcards
×
Estatísticas
×
Reportar um erro
×
Provas
Questão presente nas seguintes provas
Analista Judiciário - Engenharia Civil
80 Questões
Resolver Prova
Publicar
Responder
Qual o problema da questão?
Selecione uma opção
Questão Desatualizada
Questão Repetida
Gabarito Errado
Outros Motivos
Mensagem
Enviar
Acessar
Criar Conta
Acesse sua Conta
Google
Facebook
Esqueci minha senha
Acessar
Ainda não tem conta?
Crie uma
!
Crie uma Conta
Criar Conta
Olá, para continuar, precisamos criar uma conta!
É
rápido
e
grátis
.
Google
Facebook
Concordo com os
Termos de Uso
Criar
Já tem uma conta?
Acesse aqui