Magna Concursos
731100 Ano: 2008
Disciplina: Arquitetura
Banca: CESPE / CEBRASPE
Orgão: INSS
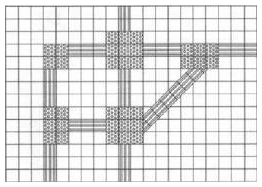
Em cada um dos itens a seguir, foi reproduzida uma figura da
NBR 9050/2004, que trata da acessibilidade de pessoas
portadoras de deficiências a edificações, espaço, mobiliário e
equipamentos urbanos, e apresentado um significado para a
figura. Julgue os itens que se seguem com relação à
correspondência entre o significado e a figura apresentados.
A figura abaixo apresenta a composição de sinalização tátil de alerta e direcional.
enunciado 731100-1
 

Provas

Questão presente nas seguintes provas

Analista do Seguro Social - Arquitetura

150 Questões