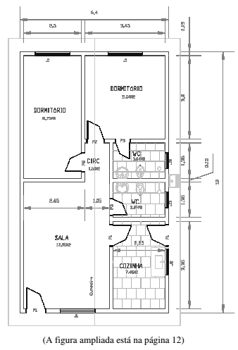
Observe a planta baixa de uma residência térrea com pé-direito igual a 2,80 m.

Com base na planta baixa apresentada, assinale a alternativa que indica a quantidade de argamassa para assentamento de azulejo nas áreas laváveis da residência, considerando a espessura de 2 cm e revestimento até o teto e desprezando-se as áreas dos vãos.