
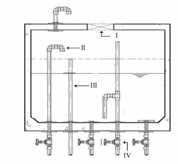
No desenho acima, que representa uma instalação hidráulica, diversos componentes dessa instalação estão indicados numericamente. Assinale a opção que apresenta a correta correspondência entre número e elemento que compõe a instalação.

No desenho acima, que representa uma instalação hidráulica, diversos componentes dessa instalação estão indicados numericamente. Assinale a opção que apresenta a correta correspondência entre número e elemento que compõe a instalação.