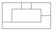
Observe a figura abaixo.

A opção que corresponde à vista ortográfica superior (vista de topo) do objeto, cujas vistas ortográficas frontal e lateral estão indicadas na figura, é:
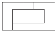
Observe a figura abaixo.

A opção que corresponde à vista ortográfica superior (vista de topo) do objeto, cujas vistas ortográficas frontal e lateral estão indicadas na figura, é: