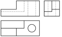
Considere a perspectiva isométrica a seguir, e assinale a única alternativa que representa corretamente suas projeções ortogonais no 3º diedro.

Considere a perspectiva isométrica a seguir, e assinale a única alternativa que representa corretamente suas projeções ortogonais no 3º diedro.
