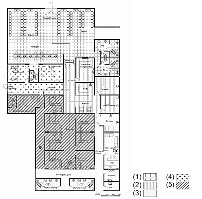
O fluxo de pacientes de uma unidade ambulatorial deve ser idealizado de forma que não interfira nas atividades da equipe de saúde e não sobreponha em áreas reservadas a pacientes internos, médicos e funcionários. Considerando a seguinte análise do projeto de uma unidade ambulatorial (figura a seguir), assinale a alternativa que apresenta corretamente as áreas identificadas pelas seguintes legendas:
