Magna Concursos
4051397 Ano: 2026
Disciplina: Matemática
Banca: FCC
Orgão: MPE-AP
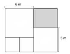
Luísa tem uma casa com quatro cômodos quadrados e um cômodo retangular, destacado em cinza na planta abaixo. Os dois cômodos quadrados maiores têm lados de 6 e 5 metros, conforme indicado, e os dois cômodos menores são iguais. 

Enunciado 4513797-1

A soma dos quatro lados do cômodo destacado vale:
 

Provas

Questão presente nas seguintes provas

Analista Ministerial - Administração

50 Questões

Analista Ministerial - Psicologia

50 Questões