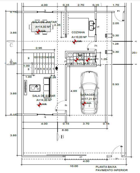
Na Planta Baixa é representada uma vista de cima de uma edificação, que possibilita ver todos os cômodos e
suas respectivas medidas facilitando a execução da obra.
Analise as assertivas em relação à planta baixa da figura acima:
I. A planta baixa não apresenta garagem.
II. No projeto apresentado não existe área de serviço.
III. A cozinha não tem porta.
IV. A divisão interna da residência apresentada no projeto é da seguinte forma: garagem, sala de estar, bwc, sala de jantar, cozinha e escada.
Em relação às assertivas acima, pode-se afirmar:
Analise as assertivas em relação à planta baixa da figura acima:
I. A planta baixa não apresenta garagem.
II. No projeto apresentado não existe área de serviço.
III. A cozinha não tem porta.
IV. A divisão interna da residência apresentada no projeto é da seguinte forma: garagem, sala de estar, bwc, sala de jantar, cozinha e escada.
Em relação às assertivas acima, pode-se afirmar: