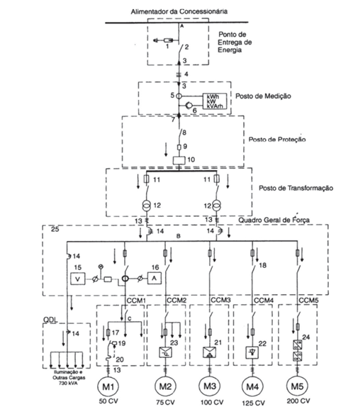
A figura a seguir apresenta o diagrama unifilar de uma instalação elétrica industrial:
Cada elemento neste diagrama está identificado com um número. Considere a lista de equipamentos:
I. transformador de potência;
II. transformador de potencial;
III. cabo de energia isolado classe 15 kV;
IV. disjuntor de baixa tensão.
Estes equipamentos estão identificados na figura, respectivamente, pelos números:
Cada elemento neste diagrama está identificado com um número. Considere a lista de equipamentos:
I. transformador de potência;
II. transformador de potencial;
III. cabo de energia isolado classe 15 kV;
IV. disjuntor de baixa tensão.
Estes equipamentos estão identificados na figura, respectivamente, pelos números:
Provas
Questão presente nas seguintes provas
Engenheiro Eletricista - Sistemas Elétricos
60 Questões