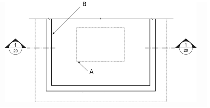
De acordo com NBR 6492/2021, na Figura 3 abaixo, a letra A representa:

Figura 3 – Exemplo de uso de linha – Planta de pavimento térreo
De acordo com NBR 6492/2021, na Figura 3 abaixo, a letra A representa:

Figura 3 – Exemplo de uso de linha – Planta de pavimento térreo