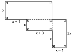
O traçado contínuo da figura, fora de escala, delimita um terreno cuja área é 360 m2.

Considerando as referências métricas fornecidas, é correto afirmar que o contorno desse terreno mede
Provas
Questão presente nas seguintes provas
Engenheiro Agrônomo
50 Questões
Físico - Física Médica
50 Questões