Magna Concursos
3707461 Ano: 2010
Disciplina: Arquitetura
Banca: Ferreira de Moura
Orgão: UFERSA
Provas:

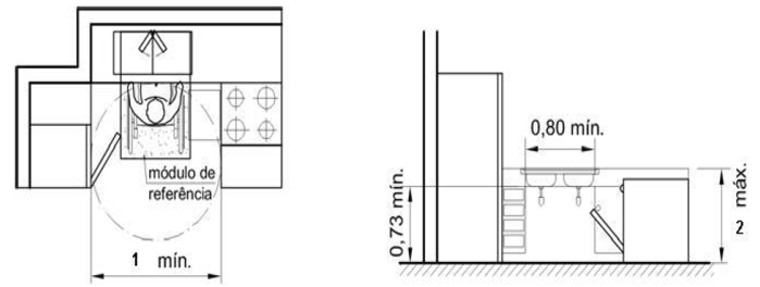
Indique quais são as medidas 1 e 2 da figura acima, segundo a NBR9050:

Enunciado 3903898-1

 

Provas

Questão presente nas seguintes provas

Arquiteto

45 Questões