Magna Concursos
Questões
Planos
Entrar
Entrar
Criar Conta
Respondida
4011317
Ano:
2026
Disciplina:
Edificações
Banca:
FAU-UNICENTRO
Orgão:
Pref. Marmeleiro-PR
Provas:
Pedreiro
Provas
×
Estudos Preliminares
Desenho Técnico em Edificações
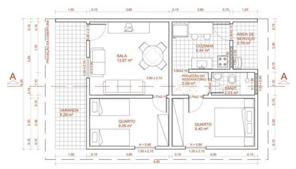
A figura abaixo representa:
A
Um corte de projeto.
B
Uma planta baixa.
C
Uma planta alta.
D
Um corte baixo.
E
Uma pranta.
Resolver
Comentários
0
×
Cadernos
×
Flashcards
×
Estatísticas
×
Reportar um erro
×
Provas
Questão presente nas seguintes provas
Pedreiro
30 Questões
Resolver Prova
Publicar
Responder
Qual o problema da questão?
Selecione uma opção
Questão Desatualizada
Questão Repetida
Gabarito Errado
Outros Motivos
Mensagem
Enviar
Acessar
Criar Conta
Acesse sua Conta
Google
Facebook
Esqueci minha senha
Acessar
Ainda não tem conta?
Crie uma
!
Crie uma Conta
Criar Conta
Olá, para continuar, precisamos criar uma conta!
É
rápido
e
grátis
.
Google
Facebook
Concordo com os
Termos de Uso
Criar
Já tem uma conta?
Acesse aqui