- Sistemas de Abastecimento e Tratamento de Água
- Sistemas de Abastecimento de Água
- Instalações Hidráulicas
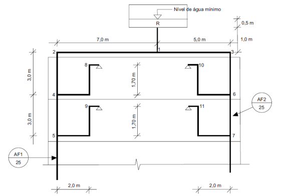
Observe a Figura 1, que representa um sistema de abastecimento predial de água fria.
Figura 1 – Esquema de uma instalação predial de água fria.
Sobre essa Figura, considere as seguintes informações:
• Os chuveiros estão instalados nos pontos 8, 9, 10 e 11;
• O barrilete possui, em toda a sua extensão, o diâmetro de 32 mm;
• As colunas de água fria possuem diâmetro de 25 mm;
• As vazões que abastecem as duas colunas de água fria são idênticas;
• Cada um dos ramais que levam a qualquer um dos chuveiros possui uma perda de carga equivalente a 0,50 m.
Com base nessas informações, analisando a perda de carga e a pressão dinâmica, é correto afirmar que a água chega com menor pressão no(nos) chuveiro(s)
Figura 1 – Esquema de uma instalação predial de água fria.
Sobre essa Figura, considere as seguintes informações:
• Os chuveiros estão instalados nos pontos 8, 9, 10 e 11;
• O barrilete possui, em toda a sua extensão, o diâmetro de 32 mm;
• As colunas de água fria possuem diâmetro de 25 mm;
• As vazões que abastecem as duas colunas de água fria são idênticas;
• Cada um dos ramais que levam a qualquer um dos chuveiros possui uma perda de carga equivalente a 0,50 m.
Com base nessas informações, analisando a perda de carga e a pressão dinâmica, é correto afirmar que a água chega com menor pressão no(nos) chuveiro(s)