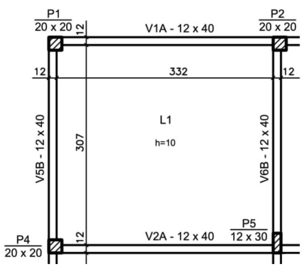
A figura a seguir apresenta uma laje maciça de concreto armado e uma tabela indicando bitolas de barras para armaduras de concreto armado e suas respectivas áreas.

(Dimensões em cm)
| Barra (mm) | Área da seção transversal (cm2) |
|---|---|
| 5,0 | 0,25 |
| 6,3 | 0,30 |
| 8,0 | 0,50 |
Sabendo que essa laje será armada com armadura mínima nas duas direções, o número total de barras para compor sua armadura positiva, de modo a consumir a menor quantidade de aço e considerando recuo nas extremidades, é: