Foram encontradas 60 questões.
Um certo tipo e marca de tinta cobre com uma demão, a área de 1,0m2 de parede com 125,0ml de tinta. Necessitando de duas demãos numa área de 400m2 em pintura, quantos baldes de 18 litros devem ser providenciados para o serviço?
Provas
Avalie quantos blocos de concreto de 15 x 19 x 39cm são suficientes para construir um muro na altura total de 2,0m em um terreno de 12,30m x 24,0m reforçado com uma cinta inferior e outra de topo em bloco canaleta de mesmo tamanho na forma abaixo (Considere: a situação de maior aproveitamento possível de blocos inteiros, a espessura média de 1cm da argamassa de assentamento entre tijolos; não haverá perdas e terá a abertura de um portão de 3,20 metros à frente do terreno, conforme croqui):

Provas
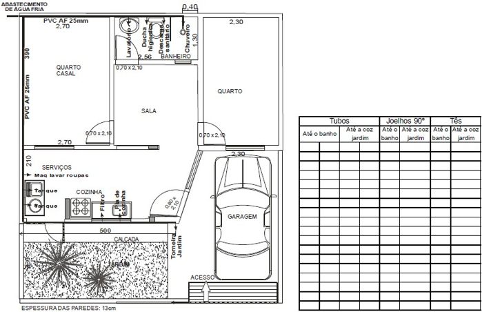
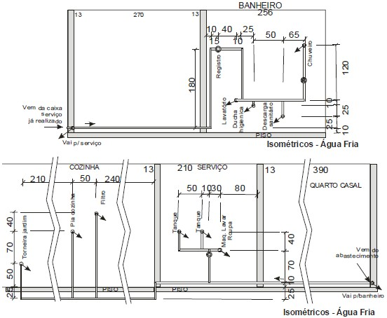
Todos os materiais para instalação de água fria (AF-PVC–25mm) foram adquiridos, exceto “joelhos” (90º), “Tês” e varas de cano de 6 metros para a construção a seguir. Com base nos projetos, avalie respectivamente, a quantidade dos materiais a adquirir para execução da instalação de água fria. (Considere um joelho para cada ponto de água):


Provas
Analisando os parafusos das fixações da cobertura superior nos pontos 1 e 2 entre a haste (A) e o apoio da cobertura (B), assinale os esforços que atuam na região junto aos parafusos 1 e 2 no contato entre a haste (A) e o apoio da cobertura (B):

Provas
Entre as ferramentas e equipamentos típicos de uma construção de boa qualidade, analise:
I. Colher de pedreiro.
II. Palheta.
III. Bisnaga.
IV. Brocha.
V. Esticador de linha.
VI. Fio traçador de linha.
VII. Caixote para argamassa e suporte.
VIII. Trenas.
IX. Nível (alemão ou laser).
X. Régua prumo-nível de 1,20m.
XI. Esquadro (60 x 80 x 100cm).
XII. Escantilhão.
XIII. Andaime.
XIV. Equipamento de proteção no andar.
NÃO são utilizados nos serviços de marcação numa construção apenas as ferramentas ou equipamentos:
Provas
“É assentado e fixado sobre o piso ou laje depois da marcação das linhas nas direções das paredes nos chamados ‘encontros de paredes’ com a primeira marca nivelada do piso ou laje em relação ao ponto mais alto onde passarão as fiadas de alvenaria, facilitando o alinhamento e o nivelamento das demais fiadas. É composto de uma haste vertical com cursor graduado a cada 20cm e duas hastes telescópicas de +/– 1,20m que se articula para apoio sobre o piso.” Tal afirmativa refere-se ao seguinte equipamento de funcionalidade:
Provas
Um vaso cerâmico para plantas tem a base quadrada de 50cm em cada lado que se prolonga neste formato até a altura de 60cm, assumindo no 1/3 restante da sua altura total, a forma cilíndrica de diâmetro idêntico ao lado do quadrado de sua base. Quantos litros da mistura de terra e húmus serão necessários para encher este vaso até sua borda? (Despreze a espessura do vaso e a 3ª casa decimal. Use π (Pi) = 3,14)
Provas
Nos desenhos de projeto a nível executivo com detalhes executivos, é recomendável que conste:
Provas
Um levantamento técnico de campo representado em folha formato A4 deverá ser desenhado em papel no formato A2 na escala 1:100, observando-se que os formatos A4 = 210mm x 297mm e A2 = 420mm x 594mm, segundo a NBR 10068. Resguardadas as proporções, qual seria a escala utilizada no desenho do levantamento de campo?
Provas
Observe a planta de uma área a aterrar para drenagem superficial. Um ponto “A” fora desta área ao nível do piso natural, foi usado como referencial dos níveis projetados nos pontos constantes da planta. Devido ao cumprimento da mangueira, transferiu-se o nível “A” para o “B” dentro da área que apresentou o mesmo nível de “A”. Assim, os níveis “C” a “H” existentes passaram a ter como referencial, o nível existente “B”. Daí, obtida a diferença entre níveis de projeto (“B” ao “H”) e os existentes (“B” ao “H”) montou-se os perfis destes níveis:

Com base nos dados apurados, avalie o volume de solos necessários para atender os níveis de projeto:
Provas
Caderno Container