Foram encontradas 40 questões.
Observe a seguinte planilha de LibreOffice Calc.

Assinale a alternativa que apresenta CORRETAMENTE o resultado da execução da fórmula =A2+A3/A1
Provas
Assinale a alternativa que apresenta CORRETAMENTE o recurso que transforma a Figura 1 na Figura 2.
Provas
Provas
A respeito do recurso “Formatar → Parágrafo” do LibreOffice Writer, analise as afirmativas a seguir:
I- Permite configurar o estilo negrito para a fonte.
II- Permite configurar o alinhamento do texto à direita.
III- Permite configurar que o texto tenha entrelinhas simples.
Estão CORRETAS as afirmativas:
Provas
Com o Windows 10 é possível criar uma conta para cada pessoa que utiliza o computador, pois é um sistema operacional ______________.
Assinale a alternativa que completa CORRETAMENTE a lacuna.
Provas
- Estruturas
- Resistência dos Materiais e Análise EstruturalEstruturas de Concreto
- Normas e Legislações
Em um determinado projeto, solicitou-se que fosse dimensionada uma abertura com comprimento (Ax) e largura (Ay), em uma laje maciça em concreto e armada em duas direções com comprimento 8,00m e largura 6,00m, que se encontra apoiada em vigas de concreto armado. Essa será a única abertura e ficará posicionada a pelo menos 2,00 metros do vão de 800cm e 1,50 metros do vão de 600cm.
Portanto, respeitando os limites determinados pela NBR 6118/2014 de forma que sejam dispensadas verificações adicionais, assinale a alternativa que representa a MAIOR dimensão para a abertura com comprimento (Ax) e largura (Ay):
Provas
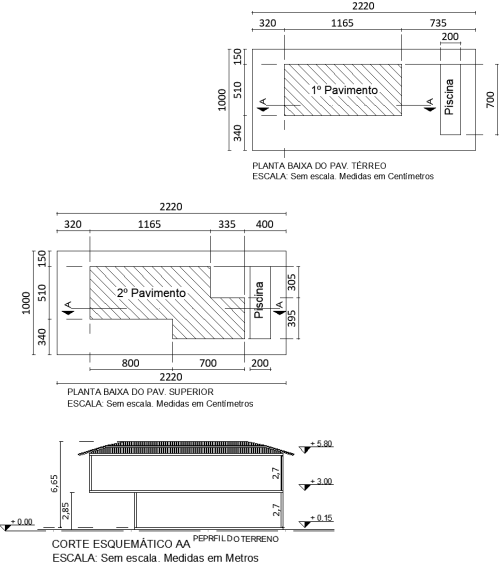
Observe as imagens a seguir para responder a questão. As plantas se referem a uma edificação a ser construída no município de Itabira/MG.

Provas
- Instalações em Engenharia CivilInstalações Hidrosanitárias
- Instalações em Engenharia CivilInstalações Pluviais
Provas
Observe as imagens a seguir para responder a questão. As plantas se referem a uma edificação a ser construída no município de Itabira/MG.

Provas

Provas
Caderno Container