Foram encontradas 40 questões.
1948448
Ano: 2020
Disciplina: Ética na Administração Pública
Banca: IBADE
Orgão: Pref. Ministro Andreazza-RO
Disciplina: Ética na Administração Pública
Banca: IBADE
Orgão: Pref. Ministro Andreazza-RO
Provas:
- UniãoExecutivoDecreto 1.171/1994: Código de Ética do Servidor Público Civil do Poder Executivo Federal
Questão 19
Suponha que um servidor público municipal chefe tenha
ordenado que um pedreiro, a ele subordinado, construísse
uma churrasqueira no terreno particular onde reside o
citado servidor chefe, desviando-o de seu trabalho comum
para esse fim. Nesse caso, com base no Decreto nº
1.171/1994, é correto afirmar que a conduta do servidor
chefe é:
Provas
Questão presente nas seguintes provas
1948447
Ano: 2020
Disciplina: Ética na Administração Pública
Banca: IBADE
Orgão: Pref. Ministro Andreazza-RO
Disciplina: Ética na Administração Pública
Banca: IBADE
Orgão: Pref. Ministro Andreazza-RO
Provas:
- UniãoExecutivoDecreto 1.171/1994: Código de Ética do Servidor Público Civil do Poder Executivo Federal
São características que o servidor público deve possuir,
constituindo verdadeiro dever fundamental do servidor
ser:
Provas
Questão presente nas seguintes provas
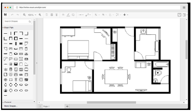
Observe a figura abaixo e responda ao que se pede.
Trata-se da planta baixa de um móvel que necessita de
serviços de pedreiro para fazer o acabamento dos
cômodos. À esquerda, na parte de cima da planta, temos
um quarto de casal, e abaixo dele um quarto menor(de
solteiro); à direita, na parte de cima, há um espaço para
cozinha, e abaixo o espaço da sala de jantar e estar e,
ainda, um banheiro.


Essa ferramenta tem muita importância na hora de fazer aplicação, nivelamento e uniformização de diferentes tipos de revestimentos, além de também contribuir para acabamentos de maior qualidade, como por exemplo, rebocos. Essa ferramenta é chamada de:
Provas
Questão presente nas seguintes provas
Observe a figura abaixo e responda ao que se pede.
Trata-se da planta baixa de um móvel que necessita de
serviços de pedreiro para fazer o acabamento dos
cômodos. À esquerda, na parte de cima da planta, temos
um quarto de casal, e abaixo dele um quarto menor(de
solteiro); à direita, na parte de cima, há um espaço para
cozinha, e abaixo o espaço da sala de jantar e estar e,
ainda, um banheiro.

Provas
Questão presente nas seguintes provas
Observe a figura abaixo e responda ao que se pede.
Trata-se da planta baixa de um móvel que necessita de
serviços de pedreiro para fazer o acabamento dos
cômodos. À esquerda, na parte de cima da planta, temos
um quarto de casal, e abaixo dele um quarto menor(de
solteiro); à direita, na parte de cima, há um espaço para
cozinha, e abaixo o espaço da sala de jantar e estar e,
ainda, um banheiro.

Provas
Questão presente nas seguintes provas
Observe a figura abaixo e responda ao que se pede.
Trata-se da planta baixa de um móvel que necessita de
serviços de pedreiro para fazer o acabamento dos
cômodos. À esquerda, na parte de cima da planta, temos
um quarto de casal, e abaixo dele um quarto menor(de
solteiro); à direita, na parte de cima, há um espaço para
cozinha, e abaixo o espaço da sala de jantar e estar e,
ainda, um banheiro.

Provas
Questão presente nas seguintes provas
Observe a figura abaixo e responda ao que se pede.
Trata-se da planta baixa de um móvel que necessita de
serviços de pedreiro para fazer o acabamento dos
cômodos. À esquerda, na parte de cima da planta, temos
um quarto de casal, e abaixo dele um quarto menor(de
solteiro); à direita, na parte de cima, há um espaço para
cozinha, e abaixo o espaço da sala de jantar e estar e,
ainda, um banheiro.

Provas
Questão presente nas seguintes provas
- Sistemas e Processos Construtivos
- Materiais de construção em Edificações
- Métodos Construtivos
- Estudos Preliminares
- Limpeza e Preparo do Terreno
- Coberturas e Pavimentos
Observe a figura abaixo e responda ao que se pede.
Trata-se da planta baixa de um móvel que necessita de
serviços de pedreiro para fazer o acabamento dos
cômodos. À esquerda, na parte de cima da planta, temos
um quarto de casal, e abaixo dele um quarto menor(de
solteiro); à direita, na parte de cima, há um espaço para
cozinha, e abaixo o espaço da sala de jantar e estar e,
ainda, um banheiro.

Provas
Questão presente nas seguintes provas
Observe a figura abaixo e responda ao que se pede.
Trata-se da planta baixa de um móvel que necessita de
serviços de pedreiro para fazer o acabamento dos
cômodos. À esquerda, na parte de cima da planta, temos
um quarto de casal, e abaixo dele um quarto menor(de
solteiro); à direita, na parte de cima, há um espaço para
cozinha, e abaixo o espaço da sala de jantar e estar e,
ainda, um banheiro.

Os termos que completam corretamente o texto sobre calçadas são, respectivamente:
Provas
Questão presente nas seguintes provas
Observe a figura abaixo e responda ao que se pede.
Trata-se da planta baixa de um móvel que necessita de
serviços de pedreiro para fazer o acabamento dos
cômodos. À esquerda, na parte de cima da planta, temos
um quarto de casal, e abaixo dele um quarto menor(de
solteiro); à direita, na parte de cima, há um espaço para
cozinha, e abaixo o espaço da sala de jantar e estar e,
ainda, um banheiro.

I- molhar a cerâmica;
II- verificar as peças cerâmicas para constatar se existirem algumas irregulares, com fissuras ou danos;
III- limpar toda a superfície dos pisos;
IV- colocar um espaçador entre uma e outra para alinhar todo o revestimento. Utilize niveladores para conferir o nível do assentamento.
Dos itens acima mencionados, estão corretos, apenas:
Provas
Questão presente nas seguintes provas
Cadernos
Caderno Container